Invalidovna - projekt obnovy

Národní památkový ústav představil studii využití Invalidovny. Historický areál bude památkově obnoven, zpřístupněn veřejnosti a nově doplněn o vrstvu současné architektury v podobě přístaveb v zadní části objektu, které navážou na slepé štíty barokní stavby.

Areál bude z velké části zpřístupněn veřejnosti. Zájemci o historii zde naleznou tradiční prohlídkovou trasu s moderním zázemím pro návštěvníky a informační centrum státních památek ve správě Národního památkového ústavu zpřístupněných veřejnosti. Prostor dostanou i výstavní, edukační a konferenční aktivity a v neposlední řadě také komunitní činnost neziskových organizací. Část objektu bude sloužit jako sídlo územní památkové správy Národního památkového ústavu v Praze a Pražského filharmonického sboru, příspěvkové organizace ministerstva kultury. Invalidovna se tak po mnoha letech izolace stane živým kulturním a společenským centrem rozvíjejícího se Karlína s odpovídajícím využitím pro současnou dobu.

Zdroj: www.vize.com

O Invalidovně

Komplex pražské Invalidovny byl vystavěn z prostředků nadace hraběte Petra Strozziho v letech 1731 až 1737 podle projektu předního českého barokního architekta Kiliána Ignáce Dientzenhofera. Objekt sloužil k ubytování a péči o válečné invalidy. Jednalo se o vůbec první sociální zařízení tohoto typu u nás. Pro svůj původní účel byl využíván až do 30. let 20. století, kdy odtud odešli poslední chovanci do nově postaveného moderního zařízení v Hořicích. Invalidovna byla dána do užívání Vojenskému archivu a později zde v roce 1941 získalo zázemí také Technické muzeum. Do areálu se příliš neinvestovalo, a stavba tak postupně chátrala. V roce 1958 se Invalidovna stala kulturní památkou a od roku 2017 má nejvyšší status ochrany jako národní kulturní památka. V roce 2002 postihly Karlín i Invalidovnu ničivé povodně, z budovy se definitivně vystěhovalo Národní technické muzeum a postupně ji opustila i zařízení ministerstva obrany. Správu Invalidovny převzal Úřad pro zastupování státu ve věcech majetkových. Ten v květnu 2018 převedl právo hospodaření na Národní památkový ústav s podmínkou, že areál bude do roku 2027 obnoven a zpřístupněn veřejnosti. Pro Invalidovnu se tím naskytla příležitost komplexní obnovy a zcela nového využití. 

Průzkumy a studie využití

Hned po převzetí začal Národní památkový ústav s předprojektovou přípravou obnovy celého areálu. Nechal zpracovat časově náročné podrobné digitální zaměření celého areálu, vlastními kapacitami provedl stavebněhistorický průzkum a pasportizaci hodnotných historických prvků, zadal zpracování širokého spektra stavebně-technických průzkumů, zjišťovací archeologický výzkum, Studii rozvoje Invalidovny v prostředí Karlína (analýzanávrh)
Studii proveditelnosti jako podklad pro zajištění financování obnovy z investičního programu ministerstva kultury.  Po přidělení dotace v březnu 2020 přistoupil k výběru zpracovatele studie využití. Za tímto účelem oslovil Národní památkový ústav v souladu se zákonem renomované projekční kanceláře s dobrými referencemi při obnově památek a z nich na základě nejvýhodnější nabídky vybral architekta pro Invalidovnu. S vítězem, architektonickou kanceláří Petr Hájek Architekti, podepsal na konci května 2020 smlouvu na zpracování studie s termínem dodání do konce srpna téhož roku. Na základě této studie bude nejpozději na přelomu roku 2020 a 2021 vypsáno výběrové řízení na dodavatele projekčních prací.

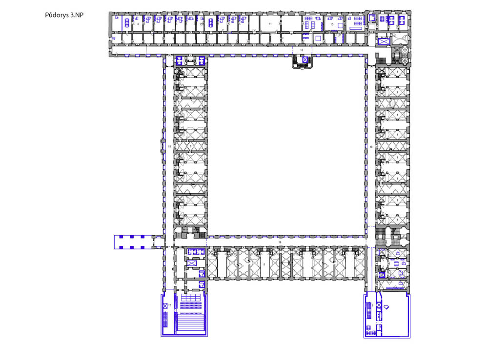
Studie využití předpokládá otevření nádvoří do veřejného prostoru Karlína, rehabilitaci všech zahrad obepínajících budovu od východu k západu a zpřístupnění historické budovy široké veřejnosti.

Východní křídlo bude zpřístupněno formou interiérové instalace, která představí život invalidů v různých časových obdobích od baroka až do 30. let 20. století. Součástí prostor bude i zázemí pro návštěvníky s prodejnou a kavárnou otevřenou do obnovené zahrady. V jižním křídle vzniknou v přízemí prostory určené pro vzdělávání a komunitní aktivity neziskových společností a v patře výstavní sály pro krátkodobé instalace. V západním křídle se formou moderního informačního centra představí bohatý soubor hradů, zámků a dalších památek ve správě Národního památkového ústavu.

Severní křídlo bude sloužit vybraným provozům Národního památkového ústavu a potřebám konferenčního centra, které nabídne prostor pro diskuse odborníků a široké veřejnosti nad tématy památkové péče. Bude zde umístěno zázemí územní památkové správy NPÚ v Praze, která spravuje památky zpřístupněné veřejnosti na území čtyř krajů – Středočeského, Karlovarského, Ústeckého a hlavního města Prahy. V patře bude vybudována moderní technologická laboratoř pro potřeby památkové péče a přemístí se sem také evidence a dokumentace kulturních památek či unikátní fotografické fondy včetně digitalizačního pracoviště i badatelny pro odbornou veřejnost.

Aby mohla být historická budova obnovena v autentické podobě, bez razantních zásahů do unikátní barokní dispozice a historických konstrukcí, a Národní památkový ústav dostál závazku vytvoření zázemí pro Pražský filharmonický sbor, jsou v zadní části budovy k slepým štítovým stěnám východního a západního křídla navrženy dvě moderní přístavby. V té východní bude mít důstojné zázemí s moderně řešenými zkušebnami Pražský filharmonický sbor – pěvecké těleso evropského významu, které doposud postrádá vlastní prostory. V západní přístavbě bude umístěn univerzální sál, který pojme až 200 návštěvníků. V obou přístavbách bude soustředěno prostorově i technicky náročné technologické zázemí pro celou Invalidovnu, aniž by musel být degradován barokní krov a bourány historické konstrukce.

Studie využití je prvním krokem na cestě k definitivnímu projektu obnovy – představuje zahájení náročného procesu, který touto studií teprve začíná. Jejím úkolem je ověření prostorových kapacit památky a rozsahu budoucích projektových prací. Studie ve variantách řešení byla předmětem 27. zasedání Vědecké rady generální ředitelky NPÚ.

Moderní přístavby

Novostavba pro technické zázemí a zkušební sály nebyla zamýšleným cílem, ale nutným ústupkem k uchování památkových hodnot typologicky výjimečné barokní architektury Kiliána Ignáce Dientzenhofera. Realizace přístaveb umožní zachovat Invalidovnu v autentické podobě a rehabilitovat některé historické prostory již novodobými zásahy degradované. Přístavby jsou navrhovány v návaznosti na štíty zadní fasády, nikoli v průčelí orientovaném do parku.

Moderní forma přístaveb byla zvolena záměrně s ohledem na individualitu památky a místa i obsaženou funkci. Vychází z předpokladu, že zvolené řešení nelze na památkách aplikovat obecně bez rozdílu, ale vždy s citlivým přihlédnutím ke konkrétní situaci. Invalidovna je především výjimečnou památkou, současně je však také torzem původně zamýšleného barokního záměru se slepými štítovými stěnami, které vybízí k pokračování. Karlín je specifickou, dynamicky se rozvíjející městskou částí, na jejímž území se setkává historická zástavba městské památkové zóny a současná architektura moderního Karlína. Invalidovna leží na rozhraní těchto dvou světů a se svým novým využitím může být do budoucna symbolem jejich propojení.

Představené řešení je v souladu s uplatňovanými principy současné památkové péče a oporu hledá i v mezinárodních dokumentech, které mezinárodní společenství deklaruje.

Reflektuje obecně platnou Benátskou chartu (1) (1964), ale pracuje i s dalšími oficiálními deklaracemi: Evropskou chartou architektonického dědictví (2) podepsanou v roce 1975 v Amsterdamu, Úmluvou o ochraně architektonického dědictví Evropy (3), deklarovanou v roce 1985 v Granadě, Krakovskou chartou (4) z roku 2000, která je výslednicí propojení benátských přístupů a snaží se reflektovat i aktuální společenské potřeby, jež neodvratně míří do 21. století, i Florentskou deklaraci (5) z roku 2014.

V souladu s těmito všeobecně platnými dokumenty Národní památkový ústav vnímá svou institucionální povinnost navracet do života společnosti pozůstatky předcházejících generací, a přitom reflektovat současné společenské potřeby, nezbavovat objekty jejich funkce, ale dovolit jim tyto současné potřeby přijmout. Invalidovna není neživým pozůstatkem. Jde o unikátní objekt s potenciálem stát se aktivní součástí dnešní doby.


(1) Kde např. čl. 5 uvádí, že Zachování památek je vždy snazší, jestliže se jim určí využití užitečné pro společnost. Proto NPÚ hledal společensky významné uplatnění této ojedinělé památky jak pro hlavní město Prahu, tak i pro karlínskou komunitu.  Aby nebyla narušena i další teze tohoto článku, která deklaruje: Žádoucí využití nicméně nesmí narušit architektonickou dispozici a výzdobu budovy, ale přitom zůstala naplněna potřeba celospolečenského využití, byla zvolena právě cesta přístaveb.
(2) Přičemž se NPÚ identifikuje s její tezí integrovaného konzervování.
(3) Zvláště pak čl. 11: Při respektování architektonického a historického charakteru dědictví se každá strana zavazuje podporovat využívání chráněných statků s ohledem na potřeby současného života, a adaptaci starých budov pro nové účely, je-li to vhodné.
(4) V Krakovské chartě u termínu rekonstrukce, památkové obnovy (Cíle a metody, odstavec 4) je uvedeno: Je třeba vyhnout se stylové památkové obnově. Obnovu omezených částí architektury lze akceptovat za předpokladu, že jsou založeny na přesné a nesporné dokumentaci. Je-li to v zájmu korektního/správného využití budovy, musí být dokončení větších částí, s prostorovým nebo funkčním významem, provedeno výrazem, který odpovídá současné architektuře. Obnova celých budov zničených válečnými událostmi nebo přírodními katastrofami je přípustná pouze za výjimečných společenských nebo kulturních důvodů souvisejících s identitou celé komunity.
(5) Kde čl. 5 uvádí význam zapojování komunity při procesech valorizace kulturního dědictví.

Investice

Obnova Invalidovny je součástí státního programu Péče o národní kulturní dědictví I. Jedná se o největší investiční akci Národního památkového ústavu a zároveň největší investiční akci resortu kultury financovanou ze státního rozpočtu. Kompletní obnova by měla být dokončena v roce 2027. Současný odhad nákladů na realizaci projektu je 1,95 miliardy korun. V této chvíli běží přípravná fáze obnovy s předpokládaným ukončením do konce roku 2022. Vlastní obnova je plánovaná na pět let.

Výstavní panely

Národní památkový ústav připravil v souvislosti s plánovanou rekonstrukcí Invalidovny výstavu, která blíže představuje studii využití i provedené výzkumy, jako je například stavebněhistorický či archeologický. Celá řada výzkumů včetně stavebně-technických (statický, hydrogeologický, mykologický, radonový) probíhala na Invalidovně téměř dva roky. Více než rok trvalo digitální zaměření celého komplexu. V rámci výzkumů byla například potvrzena výjimečná hodnota krovů nad všemi křídly Invalidovny.

Výstavní panely spolu s modely obnovené Invalidovny si lze prohlédnout přímo v Invalidovně, kde budou k dispozici až do zahájení samotné obnovy.

Současný stav Invalidovny

Pohled odborné veřejnosti

Převod památkově unikátního objektu Invalidovny do správy Národního památkového ústavu (NPÚ) považujeme za to nejlepší, co mohlo tuto památku potkat. Pro historický objekt je tak zaručen citlivý přístup při jeho adaptaci pro nové využití. Zároveň máme jistotu, že toto využití nebude v kolizi s možnostmi budovy – což by v případě ryze komerčního využití bezesporu hrozilo. (více)
- Klub Za starou Prahu

Úkolem rozmístit v Invalidovně její nové funkce a nalézt v ní místo pro filharmonický sbor pověřil Národní památkový ústav architekta Petra Hájka. Této práce se architekt ujal na základě svého vítězství ve výběrovém řízení, což je forma, která se u nás u staveb pro kulturu osvědčila stejně dobře jako architektonická soutěž a přinesla už hodnotné výsledky například u přestavby krajské galerie v Liberci, u rekonstrukce Uměleckoprůmyslového muzea v Praze nebo u novostavby archeoparku v Pavlově u Mikulova. (více)
- Prof. PhDr. Rostislav Švácha, CSc.

Že by závan svěžího ducha v památkové péči? Že by došlo k uvědomění si, že historická kvalita může být zvýrazněna na pozadí kvality přítomnosti a naopak? Že bychom dokázali mít odvahu k přidání sebevědomé identity naší doby k neméně sebevědomé identitě naší minulosti?
Takové otázky mě napadaly, když jsem měl možnost shlédnout studii architekta Petra Hájka na dostavby k tomu účelu připravených štítů Invalidovny v Karlíně – slavného fragmentu plánovaného rozsáhlého komplexu od Kiliána Ignáce Dientzenhofera. 
(více)
- Ing. arch. Josef Pleskot

Diskutovaná nevyhnutnosť dostavby či prístavby nie je subjektívnym rozhodnutím pamiatkárov – ktorí mimochodom Invalidovňu skutočne zachránili –, ale je vecou spoločenského konsenzu viacerých inštitúcií formulujúcichoživujúce a nové programy pre významnú stavbu, ktorá dlhé desaťročia žila relatívne uzavretým administratívnym životom. Nový verejný program je tak bohatý, že Invalidovňu nemožno považovať za prázdnu, ale naopak za zmysluplne naplnenú. (...) Multifukčné a variabilné sály a svetelné hry spojené s výhľadmi na mesto sú súčasným výrazom podôb multifaktorálnej nevyhnutnosti obnovy. Nie polarita transparentnosti a nepriehľadnosti, ale dialóg mnohohlasého slova ako základ kultúry každej doby, aj tej barokovej. (více)
- Prof. PhDr. Marian Zervan, PhD.Ing. arch. Monika Mitášová, PhD.

Jako architekt velmi positivně vnímám snahu Národního památkového ústavu o dostavbu objektu Invalidovny novou, soudobě pojatou vrstvou architektury. Je to důležitou zprávou pro architekty i památkáře, že památková péče a současná architektura nejsou dvě separátně fungující odvětví, která spolu mají problém hovořit a případně i tvořit. Je to zprávou, že architekti a památkáři mohou a měli by nejen spolupracovat, ale také se respektovat. Invalidovna je skvělou příležitostí dokázat, že si vážíme jak doby minulé, tak současné. (více)
- Ing. arch. Martin Zítek

Návrh dostavby Invalidovny ateliéru Petra Hájka hovorí jazykom súčasnej architektúry, ktorá nie je arogantná, bezpohlavná, ale odvážna, logická a zmysluplná. Architekti navrhujú súčasnú hmotu s invenčnou fasádou z českého tabuľového priesvitného skla so šošovkou, ktorá bude výnimočná a presiahne české architektonické prostredie. (více)
- Ing. arch. Lena Ilová

Sklenená prístavba, vyvolávajúca vášnivé emócie, slúži ako technické zázemie budovy. Poškodenie vnútorných častí pôvodnej budovy považujem za oveľa závažnejší zásah, ako vytvorenie sklenenej dostavby, naviac v zadnej časti budovy, ktorá tento účel zastreší. Zároveň bude filharmonický orchester umiestnený v dôstojnom priestore, ktorý bude spĺňať technické štandardy potrebné pre organizáciu takéhoto charakteru. (více)
- Mgr. Jana Turanská, PhD.

Návrhem pro pražskou Invalidovnu se Národní památkový ústav chopil příležitosti, jak oživit debatu o obnově historické architektury a zřetelně ukázat, co obnáší konverze historické budovy - stavby typologicky tak silně poznamenané jejím předchozím účelem - pro její novodobé využití. (více)
- Arch. Bruno Mazzone

Debata o rekonstrukci Invalidovny v CAMPu

Hosté:
  • Naděžda Goryczková, generální ředitelka NPÚ
  • Jan Kasl, předseda ČKA
  • Petr Hájek, architekt / Petr Hájek Architekti
  • Tomáš Zdvihal, architekt / CBArchitektura
  • Ondřej Boháč, ředitel IPR Praha
Moderuje:
  • Adam Gebrian

Diskuze byla uspořádána ve spolupráci s Institutem plánování a rozvoje hl. m. Prahy.